54 Moonstone CRESCENT - $434,900.00

54 Moonstone CRESCENT - $434,900.00

MLS# 26000989: 54 Moonstone CRESCENT, Chatham, Canada


$434,900
54 Moonstone Crescent
Chatham, ON
House | 2 bds, 2 bths
Bed / Bath2 / 2 Full
Listing ID26000989
StyleBungalow, Ranch
ConstructionAluminum/Vinyl, Br
FlooringCarpeted, Cushion/
ParkingAttached Garage, G
Land Size31.43 X IRREGULAR
TypeHouse
StatusFor sale
 Image Gallery  
 View Map / Directions  
 Request More Information  
 Mortgage Calculator  
 Download Listing Brochure  
  Listings  

Property Details

Extended Features:

Features Concrete Driveway, Cul-de-sac, Double width or more drivewayOwnership FreeholdAppliances Dishwasher, Dryer, Microwave Range Hood Combo, Refrigerator, Stove, WasherCooling Central air conditioning, Fully air conditionedFoundation ConcreteHeating Forced air, FurnaceHeating Fuel Natural gas

Details:

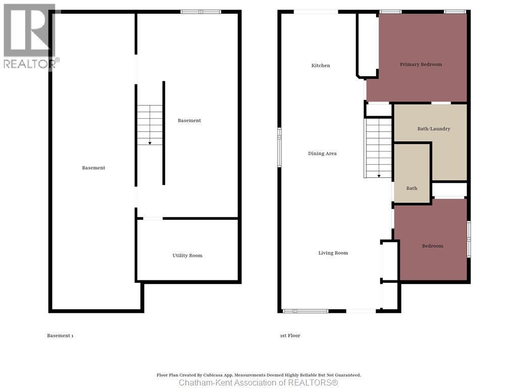
This 2021 brick and vinyl ranch sits on a quiet cul-de-sac with a backyard that's actually usable. Bigger than most on the street, and perfect if you want outdoor space without having to maintain a big yard.Two bedrooms. Two full bathrooms, including an ensuite. One-level living that doesn't feel cramped or compromised. The main floor gives you a real entertaining space and room to host without feeling like you're on top of your guests. And when you step outside to the back deck & gazebo, you'll notice a bigger than normal in the neighbourhood fenced-in backyard. An attached single garage means you're not scraping ice off your car in January. The unfinished basement gives you options. Storage for all the things that came from your bigger house! A workshop or a future rec room and a roughed-in bathroom for the future. Built in 2021, so you can move right in without having to do a bunch of repair work. And the remaining Tarion warranty is transferable. You're not inheriting someone else's to-do list. The brick-and-vinyl exterior means less upkeep. No painting every few years. No wood trim rotting. Just the kind of low-maintenance design that lets you actually enjoy your weekends on the golf course instead of spending them on house projects. The cul-de-sac location gives you the quiet without the isolation. And grocery stores, doctors, the city bus, and restaurants are all within easy reach. And here's what matters most. This house was designed for how people actually want to live at this stage. Everything on one floor. No wasted space. No rooms you'll never use. Just the right amount of house in the right kind of neighbourhood. This is the house downsizers say they want but rarely find. One level. Low maintenance. Actual curb appeal. Space that works for how you live now, not how you lived 20 years ago. If you're tired of climbing stairs, heating rooms you don't use, and managing more house than you need, this one's worth seeing. Call listing agent for showing. (id:4555)
  top
LISTING OFFICE:
Nest Realty Inc., Bridget Blonde

REQUEST MORE INFORMATION

To help complete this form & improve your experience — simply Connect to Facebook!

Connect to Facebook!
ORPlease complete each field marked with an * and then select the Submit Request button.




0 of 5000
Robot / SPAM prevention. Please enter this text into the appropriate box.
Change Image






Land Transfer Tax







Land Transfer Tax
$0.00
* Please be aware that this calculation is for indicative purposes only and is an approximate value.

Mortgage Calculator









Percent Down
Down Payment
Remaining Mortgage
CMHC/GE Premium
Total Financing
Monthly Mortgage Payment
Taxes/Fees
Total Payment
Income Required
* Please be aware that these calculations are for indicative purposes only and are approximate values.

Connect with Cassandra Duquette on LinkedIn
Loading...